5~30/5吨单主梁吊钩门式起重机
5~30/5吨单主梁吊钩门式起重机

| 起重量 Lifting Weight | t | 5 | 10 | |||||||||
| 跨度 Span | m | 18 | 22 | 26 | 30 | 35 | 18 | 22 | 26 | 30 | 35 | |
| 起升高度(m)Lift Height | 10 | 11 | 10 | 11 | ||||||||
| 工作制度Working | 中级 | 中级 | ||||||||||
|
速度 Speed | 起升lift | min | 12.75 | 9.82 | ||||||||
| 小车运行 handcar travel | 37.5 | 39.7 | ||||||||||
| 大车运行 crat travel | 46.3 | 40 | 39.5 | 40 | ||||||||
|
电动机 Motor | 起升lift | type/kw | YZR160L-6/11 | YZR200L-8/18.5 | ||||||||
| 小车运行 handcar travel | YZR132M1-6/2.5 | YZR132M2-6/4 | ||||||||||
| 大车运行 crat travel | YZR160M2-6/8.5 | YZR160M2-6/13×2 | YZR160M2-6/8.5×2 | YZR160L-6/13×2 | ||||||||
|
重量 Weight | 小车 Handcart | t | 2.93 | 2.94 | 2.95 | 2.96 | 4.21 | 4.23 | 4.27 | |||
| 总重量TotalWeight | 32.4 | 34.8 | 41 | 49 | 52 | 41.3 | 45 | 48.7 | 58.3 | 62.4 | ||
| 轮压 Max.Wheel Pressure | KN | 160 | 166 | 185 | 213 | 233 | 225 | 236 | 239 | 286 | 298 | |
| 荐用钢材Steel track | 43kg/m | 43kg/m | ||||||||||
| 电源 Power Supply | 三相交流 3-Phase A.C 50Hz 380V | |||||||||||
| 起重量 Lifting Weight | 主Primary | t | 15 | 20 | 30 | |||||||||||||
| 副secondary | 3 | 5 | 5 | |||||||||||||||
| 跨度 Span | m | 18 | 22 | 26 | 30 | 35 | 18 | 22 | 26 | 30 | 35 | 18 | 22 | 26 | 30 | 35 | ||
| 工作制度Working system | 中级 | |||||||||||||||||
| 起升高度(m) Max Lifting Height | 主Primary | 10 | 11 | 10 | 11 | 10 | 11 | |||||||||||
| 副secondary | 10.5 | 11.5 | 10 | 11 | 20.85 | 11.85 | ||||||||||||
|
速度 Speed |
起升 lift | 主Primary | m/min | 9.7 | 9.2 | 7.6 | ||||||||||||
| 副secondary | 22.5 | 19.4 | 19.5 | |||||||||||||||
| 小车运行 handcar travel | 39.7 | 39.7 | 38.6 | |||||||||||||||
| 大车运行 crat travel | 40 | 47.1 | 10 | 47 | 38.9 | 44.1 | ||||||||||||
|
电动机 Motor |
起升 lift | 主Primary | YZR225M-8/26 | YZR250M1-8/35 | YZR280M-10/55 | |||||||||||||
| 副secondary | YZR160L-6/13 | YZR200L-8/18.5 | YZR200L-8/18.5 | |||||||||||||||
| 小车运行 handcar travel | YZR160M1-6/6.3 | YZR160M1-6/6.3 | YZR160M2-6/8.5 | |||||||||||||||
| 大车运行 crat travel | YZR160L-6/13×2 | YZR200L-8/18.5×2 | YZR160L-6/13×2 | YZR200L-8/18.5×2 | YZR160L-6/13×2 | YZR200L-8/18.5×2 | ||||||||||||
|
重量 Weight | 小车 Handcart | t | 8.3 | 8.4 | 8.7 | 8.8 | 12.8 | 13.0 | 13.1 | |||||||||
| 总重量TotalWeight | 49.1 | 53 | 57.2 | 70.7 | 75.1 | 53.7 | 57.7 | 65.6 | 75.3 | 80.2 | 72 | 75 | 82 | 96 | 103 | |||
| 轮压 Max.Wheel Pressure | kN | 298 | 306 | 310 | 370 | 383 | 340 | 346 | 362 | 419 | 432 | 530 | 540 | 580 | 630 | 690 | ||
| 荐用钢材 Steel track | 43kg/m | 43kg/m | 43kg/m QU80 | |||||||||||||||
| 电源 Power Supply | 三相交流 3-Phase A.C 50Hz 380V | |||||||||||||||||
|
起重量 Lifting Weight |
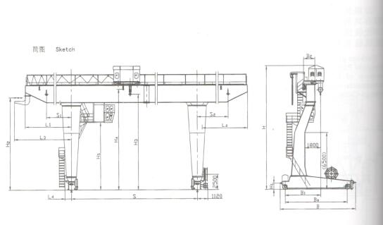
跨度 Span (m) | 尺寸(mm)size | ||||||||||||||||||||||
| Pa | Bx | B | H | H1 | H2 | H3 | H4 | H5 | H6 | H7 | L1 | L2 | L3 | I1 | I2 | I3 | I4 | I5 | S1 | S2 | S3 | S4 | ||
| 5 | 18 | 6000 | 1700 | 7467 | 12889 | 577 | 720 | 1820 | 9610 | 6647 | 9447 | 10000 | 6717 | 6717 | 8074 | 590 | 1920 | 2130 | 865 | 5000 | 5000 | |||
| 22 | 9347 | |||||||||||||||||||||||
| 26 | 7000 | 8529 | 13889 | 660 | 1428 | 2778 | 9530 | 7647 | 9247 | |||||||||||||||
| 30 | 10997 | 2572 | 921 | 7000 | 7000 | |||||||||||||||||||
| 35 | 10360 | 7447 | 9897 | 11000 | 8717 | 8717 | 10074 | 2570 | ||||||||||||||||
| 10 | 16 | 7000 | 2300 | 8283 | 13597 | 660 | 1475 | 2825 | 9950 | 7251 | 9781 | 10000 | 7027 | 7027 | 8380 | 570 | 1800 | 2690 | 921 | 5000 | 5000 | |||
| 22 | 9681 | |||||||||||||||||||||||
| 26 | 7500 | 9029 | 2977 | 10281 | 2904 | |||||||||||||||||||
| 30 | 14545 | 10950 | 7051 | |||||||||||||||||||||
| 36 | 7551 | 10231 | 11000 | 9027 | 9027 | 10380 | 7000 | 7000 | ||||||||||||||||
| 15/3 | 18 | 7000 | 2600 | 8529 | 13765 | 660 | 1528 | 2878 | 9950 | 7051 | 9677 | 7217 | 7217 | 8572 | 650 | 700 | 1800 | 2690 | 921 | 5000 | 5000 | 5250 | 4750 | |
| 22 | 9577 | |||||||||||||||||||||||
| 26 | 7500 | 9029 | 14765 | 3030 | 5780 | 6947 | 9477 | 2904 | ||||||||||||||||
| 30 | 10780 | 7597 | 10277 | 9217 | 9217 | 10572 | ||||||||||||||||||
| 35 | 7494 | 10177 | ||||||||||||||||||||||
| 20/5 | 18 | 7500 | 2800 | 7029 | 13795 | 660 | 1520 | 3022 | 9950 | 6950 | 9550 | 7934 | 7234 | 9230 | 650 | 130 | 1800 | 2004 | 921 | 5000 | 5000 | 6486 | 3514 | |
| 22 | 9029 | 6850 | 9450 | |||||||||||||||||||||
| 26 | 8000 | 800 | 3204 | 989 | ||||||||||||||||||||
| 30 | 9725 | 14795 | 3122 | 10950 | 7450 | 10050 | 9934 | 9234 | 11880 | |||||||||||||||
| 35 | 6650 | |||||||||||||||||||||||
| 30/5 | 18 | 8000 | 2800 | 11338 | 14152 | 380 | 1520 | 3224 | 10100 | 7226 | 9696 | 8006 | 8006 | 9380 | 790 | 52 | 1935 | 3335 | 1982 | 5000 | 5000 | 3315 | 6685 | |
| 22 | 10370 | 7026 | ||||||||||||||||||||||
| 26 | 8500 | 11558 | 930 | 3420 | 11300 | 7826 | 10296 | 3570 | 1522 | |||||||||||||||
| 30 | 15152 | 10001 | 10006 | 11380 | ||||||||||||||||||||
| 35 | 7722 | 10192 | ||||||||||||||||||||||
2025-06-23 本文被阅读 13304 次
| 上一篇:双梁起重机遥控器的急停按钮很关键 | 下一篇:5~50/10吨双梁吊钩门式起重机示意图 |

